
- Antona Pécha 88/24, Banská Štiavnica,
Interné ID: | 135 |
---|---|
Ulica: | Podlavická cesta 3662/9 |
Mestská časť: | Podlavice |
Obec: | Banská Bystrica |
Okres: | Banská Bystrica |
Kraj: | Banskobystrický kraj |
Druh: | Domy |
Typ: | Predaj |
Typ domu: | Rodinný dom |
Ponúkame na predaj dvojpodlažný rodinný dom s garážou a menším pozemkom na Podlavickej ceste v Banskej Bystrici.
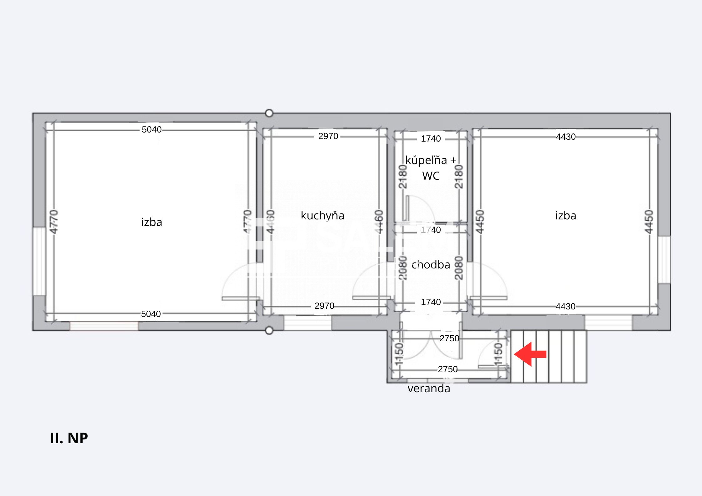
Dom ponúka možnosť zriadenia dvoch samostatných dvojizbových bytových jednotiek, čo otvára priestor na viacgeneračné bývanie alebo investíciu s cieľom prenájmu.
Napriek menšiemu pozemku nehnuteľnosť poskytuje všetko, čo rodina potrebuje – garáž, dielňu pod garážou, altánok s grilom, nádvorie aj menšiu záhradku. Výhodou je celodenné slnko a krásne panoramatické výhľady na Podlavice a Banskú Bystricu.
Dom je plne obývateľný, prešiel rekonštrukciou v roku 2013, no v súčasnosti si vyžaduje modernizáciu.
ZÁKLADNÉ ÚDAJE:
DISPOZÍCIA:
CENA:
208 000 €
Platba možná v hotovosti alebo prostredníctvom hypotekárneho úveru.
S financovaním Vám radi bezplatne pomôžeme.
DOPLŇUJÚCE INFORMÁCIE:
Predaj nehnuteľnosti prebieha na základe zmluvného zastúpenia.