
- Antona Pécha 88/24, Banská Štiavnica,
Interné ID: | 112 |
---|---|
Ulica: | Zvolen |
Obec: | Zvolen |
Okres: | Zvolen |
Kraj: | Banskobystrický kraj |
Druh: | Domy |
Typ: | Predaj |
Typ domu: | Rodinný dom |
Pri kúpe danej nehnuteľnosti prostredníctvom hypotekárneho úveru Vám preplatíme úroky nad 2,4% na obdobie 36mesiacov.
Dovoľujeme si ponúknuť na predaj novostavbu dvojpodlažného rodinného domu s 5 izbami, záhradou a parkovacou plochou nachádzajúcu sa vo Zvolene v časti Kráľová, postavenú na slnečnom pozemku s výhľadmi na okolitú prírodu.
Moderná novostavba je aktuálne v štádiu holodomu, pričom v prípade záujmu Vám dom odovzdáme kompletne dokončený podľa Vašich predstáv.
ZÁKLADNÉ ÚDAJE:
* lokalita: Zvolen - časť Kráľová
* veľkosť pozemku: 529m2
* úžitková /zastavaná plocha domu: 127,83 / 83,26m2
* počet izieb: 5
* kúpeľňa: 2x
* materiál: ytong
* okná: plastové
* kúrenie podlahové – tepelné čerpadlo
* strecha: sedlová - plech
* zateplenie: áno
* siete: Elektrina , mestský vodovod, žumpa - 12m3
* orientácia: čelná strana domu na východ
POPIS NEHNUTEĽNOSTI:
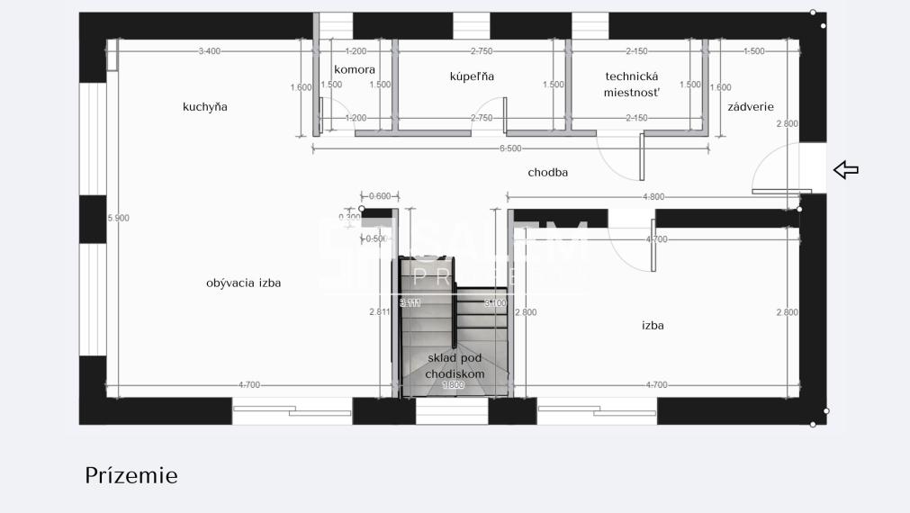
* Prízemie: zádverie, chodba so schodiskom, tech. miestnosť, kúpeľňa, komora, obývacia izba s kuchyňou, sklad, izba
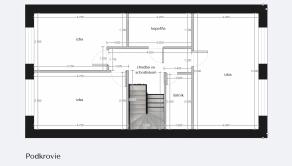
* Podkrovie: chodba so schodiskom, šatník, kúpeľňa, 3x izba
CENA a PLATBA:
* Dohodou
* platba v hotovosti, alebo prostredníctvom úveru (pomôžeme Vám s jeho vybavením)
LOKALITA:
Mestská časť Kráľová sa nachádza 8km južne od Zvolena, je obklopená prírodou a okrem turistických trás sa v nej nachádza tiež Lyžiarske stredisko, jazdecký ranč a hotel.
INFO.:
Nehnuteľnosť Vám ponúkame na základe výhradného zmluvného zastúpenia. Radi Vás prevedieme nezáväznou obhliadkou a v prípade Vášho rozhodnutia pre kúpu, poskytneme kompletný servis pre získanie nehnuteľnosti do Vášho vlastníctva, vrátane pomoci pri vybavovaní vhodného financovania kúpy nehnuteľnosti.