Používame cookies

Súbory cookie a ďalšie technológie sledovania používame na zlepšenie vášho zážitku z prehliadania našich webových stránok, na to, aby sme vám zobrazovali prispôsobený obsah a cielené reklamy, na analýzu návštevnosti našich webových stránok a na pochopenie toho, odkiaľ naši návštevníci prichádzajú. Viac info

 

Administratívna budova v historickom centre Banskej Bystrice

Interné ID: 130
Ulica: Horná 97/41
Mestská časť: Centrum
Obec: Banská Bystrica
Okres: Banská Bystrica
Kraj: Banskobystrický kraj
Druh: Objekty
Typ: Predaj
Typ objektu: Polyfunkčná budova
980 000 €
• Cena reflektuje polohu v historickom centre a investičný potenciál nehnuteľnosti. Pri konkrétnom zámere a serióznom jednaní je priestor na individuálnu dohodu.

Popis nehnuteľnosti

Dovoľujeme si Vám ponúknuť na predaj štvorpodlažnú administratívnu budovu situovanú priamo v srdci historického centra mesta Banská Bystrica, na prestížnej adrese Horná ulica.

Táto nehnuteľnosť predstavuje jedinečnú investičnú príležitosť s vysokým potenciálom výnosu. Budova je v dobrom technickom stave, bez potreby zásadných rekonštrukcií, a bola donedávna plne využívaná administratívnymi a obchodnými prevádzkami.

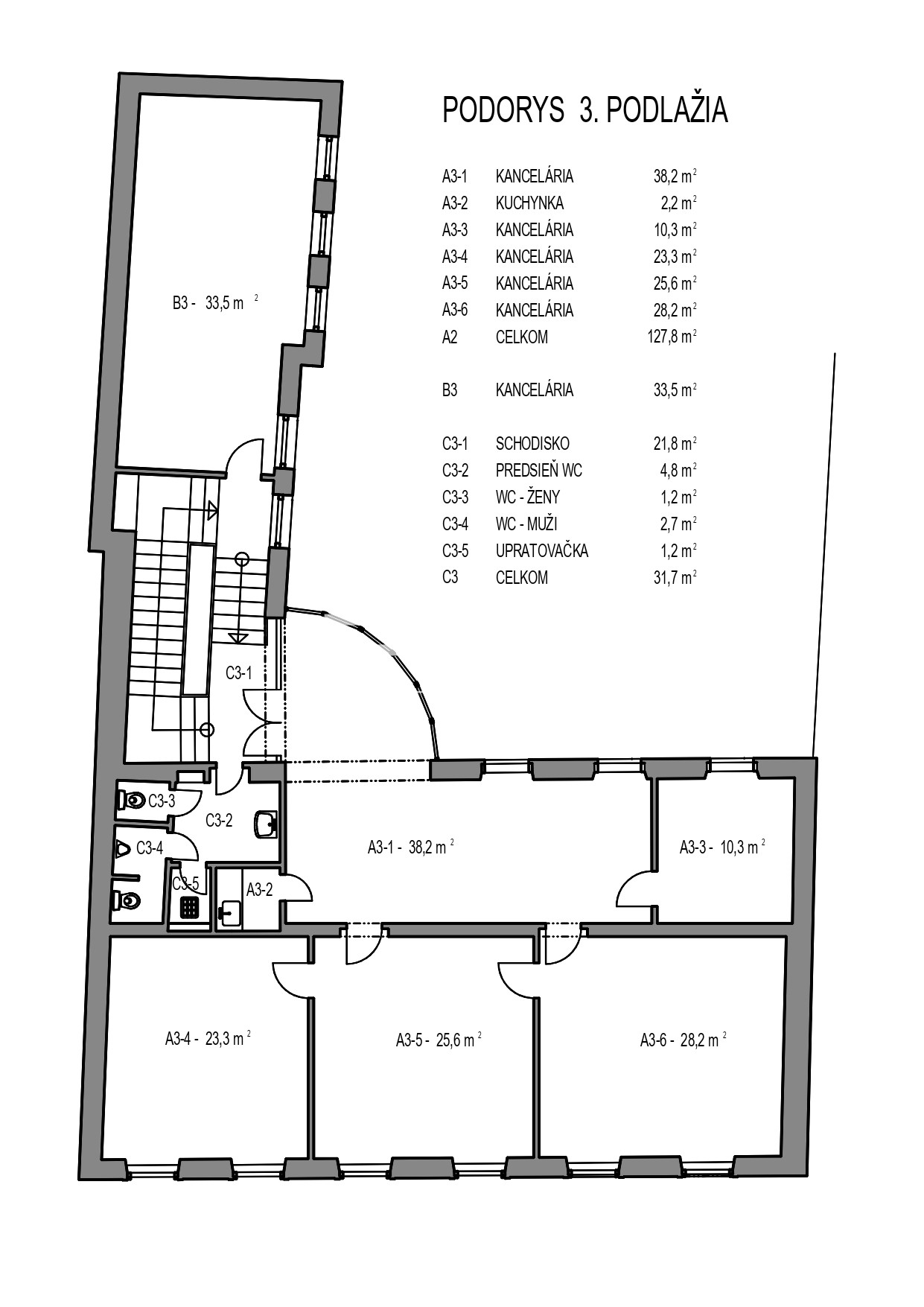
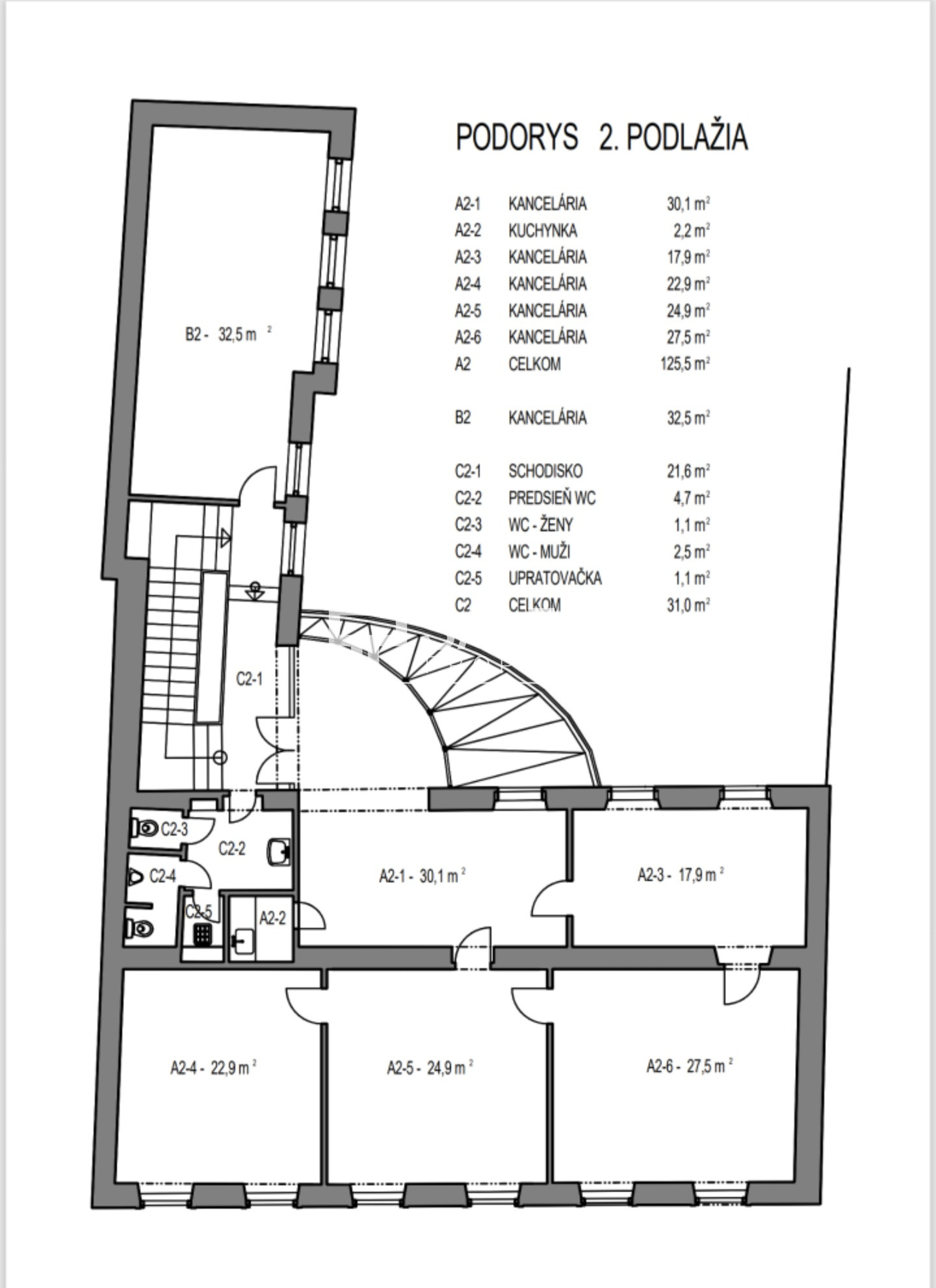
Vďaka svojej polohe, dispozícii a charakteru ponúka široké možnosti využitia – od kancelárskych a obchodných priestorov, cez kombináciu služieb až po atraktívne mestské bývanie. Flexibilita priestoru umožňuje prispôsobiť nehnuteľnosť aktuálnym trendom na trhu a maximalizovať jej investičný potenciál (pôdorysy k dispozícii vo fotogalérii).

Pre investorov je kľúčovou výhodou možnosť zabezpečenia naplnenia budovy nájomníkmi – radi Vám pomôžeme s prenájmom celej budovy alebo jej častí, čím sa z tejto nehnuteľnosti stáva stabilná a výnosná investícia.

Zároveň ide o výnimočnú príležitosť vlastniť nehnuteľnosť priamo v historickom centre mesta – hodnotu, ktorá si dlhodobo udržiava svoju atraktivitu a rastový potenciál.


ZÁKLADNÉ ÚDAJE:

  • lokalita: Banská Bystrica – Horná 41
  • veľkosť pozemku: 615 m²
  • úžitková plocha budovy: 736,2 m²
  • materiál: tehla
  • kúrenie: ústredné (plyn)
  • okná: drevené
  • inžinierske siete: elektrina (medená inštalácia), mestský vodovod, kanalizácia
  • orientácia: čelná strana budovy na východ

CENA a PLATBA:

  • cena: dohodou
  • Cena reflektuje polohu v historickom centre a investičný potenciál nehnuteľnosti. Pri konkrétnom zámere a serióznom jednaní je priestor na individuálnu dohodu.
  • možnosť financovania z vlastných zdrojov alebo prostredníctvom úveru (radi Vám pomôžeme s jeho vybavením)

INFO:

Nehnuteľnosť ponúkame na základe výhradného zmluvného zastúpenia. Radi Vás prevedieme nezáväznou obhliadkou a v prípade záujmu zabezpečíme kompletný servis – od právneho procesu kúpy, cez financovanie až po poradenstvo pri rekonštrukcii a prenájme.

Vlastnosti

Status:
aktívne
Vlastníctvo:
korporácia
Úžitková plocha:
736.2 m2
Zastavaná plocha:
500 m2
Stav:
čiastočne prerobený
Typ budovy:
tehla
Typ výbavy:
nevybavený
Celková plocha:
736.2 m2
Inžinierske siete:
áno
Vykurovanie - centrálne:
áno
Status:
aktívne
Vlastníctvo:
korporácia
Úžitková plocha:
736.2 m2
Zastavaná plocha:
500 m2
Stav:
čiastočne prerobený
Typ budovy:
tehla
Typ výbavy:
nevybavený
Celková plocha:
736.2 m2
Inžinierske siete:
áno
Vykurovanie - centrálne:
áno

Informatívna úverová kalkulačka

Pozrieť na mape

Maklér

Marek Mikuš

Marek Mikuš

Realitný maklér

  • Slovensky

Radi Vám poradíme

Podobné nehnuteľnosti