Používame cookies

Súbory cookie a ďalšie technológie sledovania používame na zlepšenie vášho zážitku z prehliadania našich webových stránok, na to, aby sme vám zobrazovali prispôsobený obsah a cielené reklamy, na analýzu návštevnosti našich webových stránok a na pochopenie toho, odkiaľ naši návštevníci prichádzajú. Viac info

 

Novostavba výrobno-skladovej budovy v Sládkovičove

Interné ID: 80
Ulica: Sládkovičovo
Obec: Galanta
Okres: Galanta
Kraj: Trnavský kraj
Druh: Objekty
Typ: Predaj
Typ objektu: Sklady a haly
273 250 €

Popis nehnuteľnosti

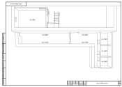
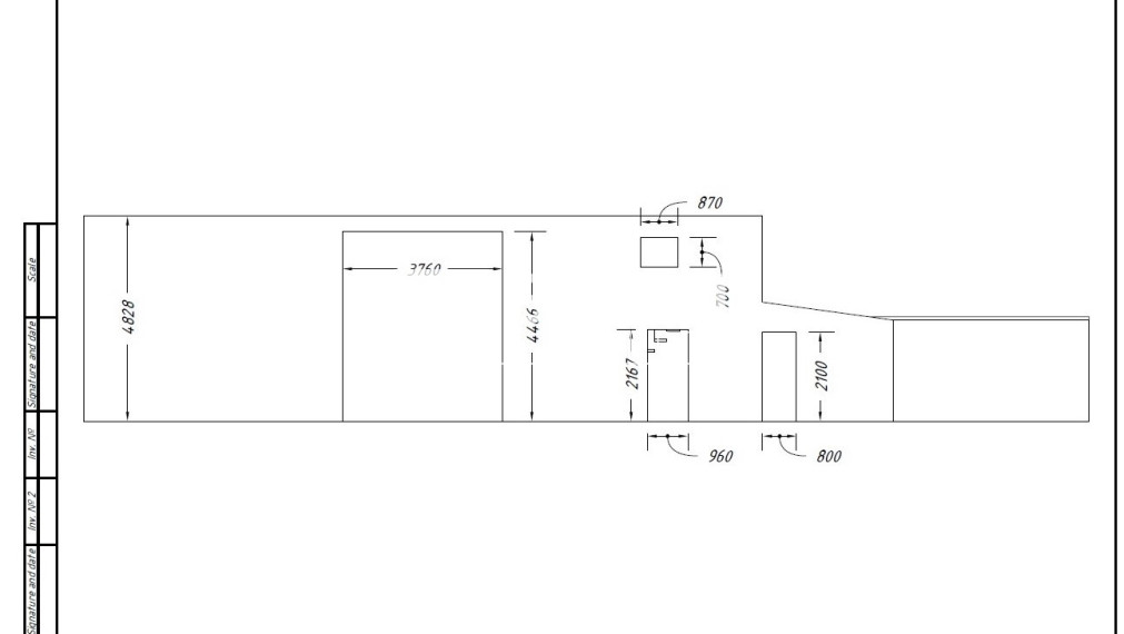
Dovoľujeme si ponúknuť na predaj novostavbu výrobno-skladovej haly s kanceláriou, 2x kúpeľňou so sprchou a WC, šatňou a ďalšími priestormi nachádzajúcu sa v priemyselnej zóne mesta Sládkovičovo.

Objekt bol vybudovaný v roku 2015, je kompletne zateplený vrátane strechy a vybavený novým el. ústredným kúrením, podlahami, rozvodmi elektriny, vody, odpadu a podobne, boli tiež nainštalované zariadenia ako kamerový systém, alarm, automatická brána a nové osvetlenie. Rovnako sú novovybudované sociálne zariadenia a vyvýšený kancelársky priestor.

Objekt je ihneď k dispozícií, vo vynikajúcom technickom stave, bez akýchkoľvek ďalších investícií.

 

ZÁKLADNÉ ÚDAJE:

* lokalita: Sládkovičovo  – Veľkoúľanská cesta

* veľkosť pozemku: 588 m2

* úžitková /zastavaná plocha budovy: 330/312 m2

* materiál: Tehla

* podlaha: Betón

* strecha: nová sedlová, plech

* kúrenie: el. ústredné

* okná, dvere: plastové

* automatická brána (4m)

* kamerový systém, alarm, internet

* elektrina – nová prípojka a nové rozvody 220/380v

* verejný vodovod

* kanalizácia: žumpa

* 2x kúpeľňa so sprchou a WC

* tech. miestnosť

* šatňa

* menší oddelený sklad so samostatným vstupom

* zariadená kancelária

 

LOKALITA:

- nehnuteľnosť sa nachádza v priemyselnej zóne mesta Sládkovičovo s bezproblémovým

  prístupom aj pre s nákladné vozidlá.

- vzdialenosti:

                       - cesta E58 / Sereď 14min. (16km)

                       - Senec                    13min. (15km)

                       - Trnava                  25min. (30km)

                       - Bratislava             30min. (37km)

 

CENA a PLATBA: 
- 273.250,- EUR

 

INFO.:

Nehnuteľnosť Vám ponúkame na základe výhradného zmluvného zastúpenia. Radi Vás prevedieme nezáväznou obhliadkou a v prípade Vášho rozhodnutia pre kúpu, poskytneme kompletný servis pre získanie nehnuteľnosti do Vášho vlastníctva.

Vlastnosti

Status:
aktívne
Vlastníctvo:
firemné
Stav:
novostavba
Celková plocha:
330 m2
Úžitková plocha:
330 m2
Zateplený objekt:
áno
Kúpeľňa:
áno
Kúpeľňa:
áno
Počet kúpeľní:
2
Energetický certifikát:
nie
El. napätie:
230/400V
Parkovanie:
áno
Voda:
verejný vodovod
Inžinierske siete:
áno
Kanalizácia:
žumpa
Materiál:
tehla
Zateplený objekt:
áno
Vykurovanie:
vlastné - elektrické
Status:
aktívne
Vlastníctvo:
firemné
Stav:
novostavba
Celková plocha:
330 m2
Úžitková plocha:
330 m2
Zateplený objekt:
áno
Kúpeľňa:
áno
Kúpeľňa:
áno
Počet kúpeľní:
2
Energetický certifikát:
nie
El. napätie:
230/400V
Parkovanie:
áno
Voda:
verejný vodovod
Inžinierske siete:
áno
Kanalizácia:
žumpa
Materiál:
tehla
Zateplený objekt:
áno
Vykurovanie:
vlastné - elektrické

Informatívna úverová kalkulačka

Pozrieť na mape

Maklér

Marek Mikuš

Marek Mikuš

Realitný maklér

  • Slovensky

Radi Vám poradíme

Podobné nehnuteľnosti