Používame cookies

Súbory cookie a ďalšie technológie sledovania používame na zlepšenie vášho zážitku z prehliadania našich webových stránok, na to, aby sme vám zobrazovali prispôsobený obsah a cielené reklamy, na analýzu návštevnosti našich webových stránok a na pochopenie toho, odkiaľ naši návštevníci prichádzajú. Viac info

 

Administratívna budova v centre Banskej Bystrice

Interné ID: 129
Ulica: Horná 97/41
Obec: Banská Bystrica
Okres: Banská Bystrica
Kraj: Banskobystrický kraj
Druh: Objekty
Typ: Predaj
Typ objektu: Obchodné priestory
Dohodou

Popis nehnuteľnosti

Dovoľujeme si ponúknuť na predaj štvorpodlažnú Administratívnu budovu nachádzajúcu sa priamo v centre Banskej Bystrice, na Hornej ulici.

Budova je v dobrom technickom stave, bez nutnosti významnej rekonštrukcie, pričom bola donedávna využívaná a obsadená administratívnymi a obchodnými prevádzkami.

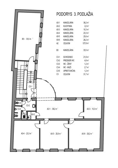
Budova je vďaka svojej vnútornej dispozícií a polohe otvorená rôznym možnostiam využitia od pôvodného určenia pre obchody a kancelárie, až po bývanie. Priestorové riešenie – viď. pôdorysy vo fotogalérii.

 

ZÁKLADNÉ ÚDAJE:

* lokalita: Banská Bystrica – Horná 41

* veľkosť pozemku: 615 m2

* úžitková plocha budovy: 736,2m2

* materiál: tehla

* kúrenie ústredné -  plyn

* okná: drevené

* siete: Elektrina – (rozvody – meď), mestský vodovod, kanalizácia

* orientácia:  čelná strana budovy na východ

 

CENA a PLATBA: 
- dohodou 
- platba z vlastných zdrojov, alebo prostredníctvom  úveru (pomôžeme Vám s jeho vybavením) 

 

INFO.:

Nehnuteľnosť Vám ponúkame na základe výhradného zmluvného zastúpenia. Radi Vás prevedieme nezáväznou obhliadkou a v prípade Vášho rozhodnutia pre kúpu, poskytneme kompletný servis pre získanie nehnuteľnosti do Vášho vlastníctva, vrátane pomoci pri vybavovaní vhodného financovania kúpy a tiež prípadnej rekonštrukcie stavby.

Vlastnosti

Status:
aktívne
Vlastníctvo:
firemné
Stav:
úplne prerobený
Celková plocha:
736.2 m2
Úžitková plocha:
736.2 m2
Počet podlaží:
4
Výťah:
nie
Energetický certifikát:
nie
El. napätie:
230/400V
Parkovanie:
verejné
Voda:
verejný vodovod
Inžinierske siete:
áno
Kanalizácia:
Verejná kanalizácia
Materiál:
tehla
Zateplený objekt:
áno
Vykurovanie:
vlastné - plyn
Status:
aktívne
Vlastníctvo:
firemné
Stav:
úplne prerobený
Celková plocha:
736.2 m2
Úžitková plocha:
736.2 m2
Počet podlaží:
4
Výťah:
nie
Energetický certifikát:
nie
El. napätie:
230/400V
Parkovanie:
verejné
Voda:
verejný vodovod
Inžinierske siete:
áno
Kanalizácia:
Verejná kanalizácia
Materiál:
tehla
Zateplený objekt:
áno
Vykurovanie:
vlastné - plyn

Informatívna úverová kalkulačka

Pozrieť na mape

Maklér

Marek Mikuš

Marek Mikuš

Realitný maklér

  • Slovensky

Radi Vám poradíme

Podobné nehnuteľnosti